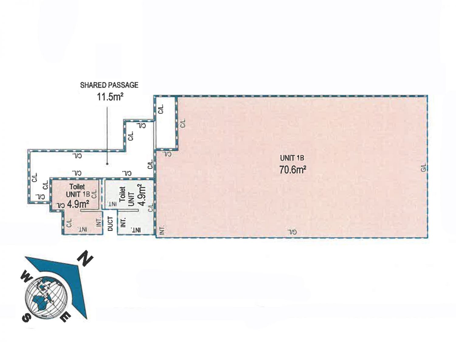
Property Description
- 75sqm Total Building Area- 70sqm (approx) Shop Floor
- 5sqm (approx) Amenities
- Street Frontage with exposure to Orrong Road
- Easy Customer Parking at Front Door
- Amenities: Kitchenette and WC
- 3 Phase Power Supply with Single & 3 Phase GPOs
- Gas available (Not connected)
- Grease Trap and Plumbing
- Air-Conditioning
- Security Grills
- Easy access to Leach Highway
- Butcher Shop previous use
For more information or to view this Orrong Road property, please contact one of our Sales Team
Property Features
-
Not Listed












