Property Description
- Suitable for Food/Feed/Cosmetic Manufacturing, Clean Laboratory, etc- 270sqm Total Building Area
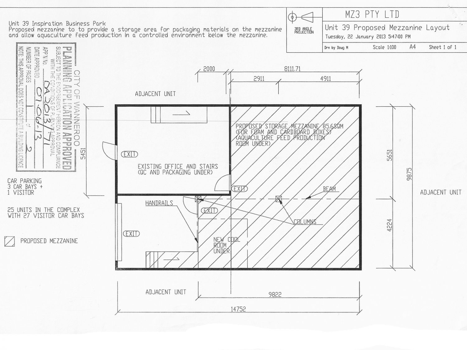
- Council Approved 85sqm Mezzanine with forklift access
- Cool Room with Remote Monitoring
- Air-conditioned Offices and Production Areas
- Amenities: Kitchenette and Shower with HWS plus WC
- 3 Phase Power Supply and GPOs
- Epoxy Painted Walls and Large Air Extractor in Production Area
- New Compressor with Air Lines into Production Area
- PVC Tile Flooring in Production, Loading and Mezzanine Areas
- Stainless Steel Benchtops, Sinks and Shelves
- Electric Roller Door - 3.8m wide x 5.0m high (approx)
- Security Alarm
- Easy access to Gnangara Road and Ocean Reef Road
For more information or to view this Inspiration Drive property, please contact one of our Sales Team
Property Features
-
Not Listed



















